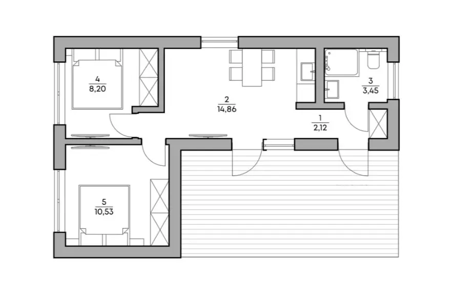
Zrealizowany projekt budynku “Relax” o powierzchni 73 m2

Informacje o projekcie

Powierzchnia zabudowy 73 m²
Wyposażenia Komfort
Położenie Żytomierz

opis wykonanej pracy

Miło nam poinformować, że nasza firma Unitbud z sukcesem zakończyła montaż kolejnego domu modułowego z tarasem. Dom ten łączy w sobie inteligentną estetykę i zaawansowaną technologię, tworząc unikalne rozwiązanie przestrzenne dla naszych klientów.

Zespół naszych wysoko wykwalifikowanych specjalistów włożył całą swoją energię i talent w realizację tego projektu. Każdy szczegół został starannie przemyślany, każdy materiał został wybrany tak, aby spełniał najwyższe standardy jakości i estetyki. Korzystamy z najnowszych technologii budowlanych, które pozwalają nam zapewnić najwyższy poziom komfortu, efektywności energetycznej i bezpieczeństwa.

Projekt ten zapewnił naszym klientom wyjątkowe możliwości stworzenia idealnej przestrzeni życiowej. Łączy w sobie nowoczesny design z inteligentnymi rozwiązaniami, w tym systemami automatyki, energooszczędnymi technologiami i energooszczędnymi urządzeniami.

Naszym celem jest zapewnienie naszym klientom nie tylko niezawodnego i funkcjonalnego mieszkania, ale także stworzenie przestrzeni, w której czują się komfortowo, swobodnie i inspirująco. Jesteśmy dumni, że każdy moduł, który tworzymy, ucieleśnia nasze marzenie o połączeniu piękna, innowacji i zrównoważonego rozwoju.

Jeśli jesteś zainteresowany naszymi rozwiązaniami modułowymi, zawsze jesteśmy gotowi doradzić i zaoferować najlepsze opcje spełniające Twoje potrzeby i budżet. Skontaktuj się z nami w Unitbud, aby dowiedzieć się więcej o tym, jak możemy pomóc Ci stworzyć idealny dom spełniający Twoje unikalne wymagania.

Recenzja wideo