ua
ua

Встановлений будинок 34 м2 в Київській області

Екстер'єр
Інтер'єр

Інформація про проект

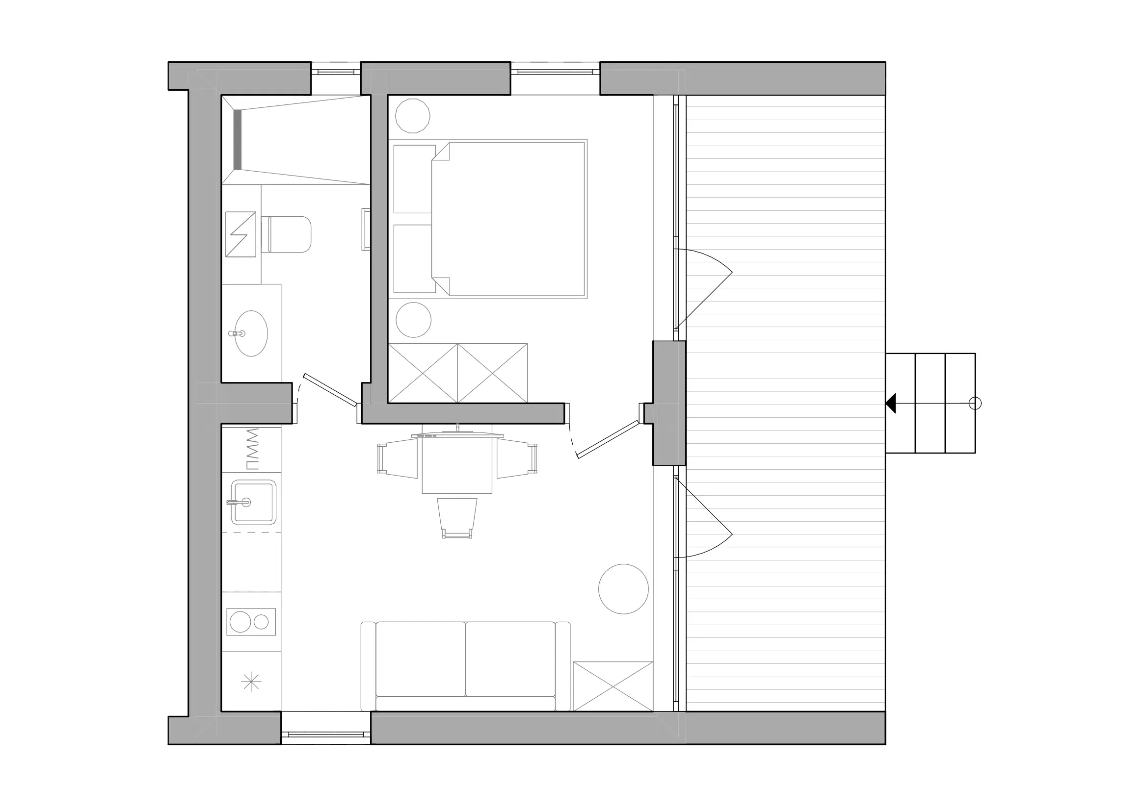
площа 34 м²
Комплектація Комфорт
Розташування Київська область

Опис виконаної роботи

Модульний будинок 34 м² – реалізовано в Київській області

У Київській області ми збудували та встановили компактний і стильний модульний будинок площею 34 м². Це чудовий варіант для пари, молодої сім’ї або як затишний гостьовий дім на присадибній ділянці.

Планування: простора кухня-студія з вітальною зоною, окрема спальня, санвузол та зручна тераса для відпочинку. Усе необхідне для комфортного проживання цілий рік або для заміського відпочинку.

Конструкція: енергоефективні стіни з якісним утепленням, сучасна вентиляційна система, надійний фундамент, енергозберігаючі вікна та чистове оздоблення всередині. Будинок повністю підготовлений до підключення всіх комунікацій.

Терміни: від розробки проєкту до встановлення під ключ – лише кілька місяців, включно з доставкою та монтажем.

Цей модульний дім – наочний приклад того, як сучасні технології дозволяють швидко отримати функціональне, стильне та доступне житло в передмісті столиці.