ua
ua

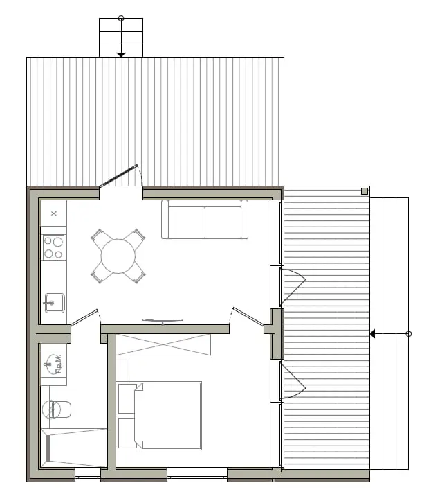
Встановлений будинок 42 м2 в Житомирській області

Екстер'єр
Інтер'єр

Інформація про проект

площа 42 м²
Комплектація Комфорт
Розташування Житомирщина

Опис виконаної роботи

Цей проєкт на Житомирщині — взірець сучасного підходу до будівництва, де естетика та довговічність є пріоритетами. Архітектура вирішена в геометрично чітких формах, а використання високоякісних матеріалів підкреслює статусність об’єкта. Відкрита тераса органічно продовжує внутрішній простір, а інтелектуальні технології роблять життя в будинку бездоганно зручним.